
Emerald Maldives Resort & SPA is located on Fasmendhoo Island, a medium-sized uninhabited island with pristine vegetation in Raa Atoll, northwest of the Maldivian capital Male. The hotel has 60 beach villas and 60 water villas,and more than half of the villas are equipped with Jacuzzi or private pools with luxurious hardware. These include a 3-bedroom Royal Suite, 2 two-bedroom Presidential Suites, 6 one-bedroom Premium Beach Suites and 11 Family Villas, offering a wide range of options for different vacation groups.
Emerald Maldives Resort & SPA - INEO Project in Maldives - Overview
Emerald Maldives Resort in Maldives - South African Restaurant Kitchen Project

This is a resort hotel project with many different functional areas. From 2017 to 2019, customers need to provide design optimization and on-site installation services in phases of civil construction and procurement. Among them, because the staff kitchen and laundry room need to be used in advance, in 2018, we carried out the first on-site installation. The second time was in 2019 for other regional installations.

The best is not necessarily the best, but the professional is good and appropriate.
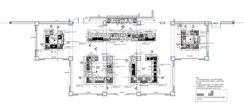
Design drawings
Design proposal presentation
The hotel engineering design: There are many detailed kitchens as a whole, which are divided into staff kitchens, main kitchens, Asian kitchens, Amazonica kitchens, barbecue bars, pool bars, lobby bars, restaurant bars and so on.
The biggest feature of the design is the bar and buffet table. Equipment, tables, decorative tables, etc. are packaged and purchased as a whole, so they can be used directly after they are placed in the corresponding location and connected to water and electricity.


Because the Maldives is an island country and the procurement is not convenient, we provide one-stop procurement and on-site installation services. Our company sent a total of 4 technicians to the site. There are many divisions in this project and it is divided into two installations on site.
From the initial planning stages to the final installation, we've taken care of every detail to ensure that your kitchen is not only functional but also beautiful and inspiring. Our team has worked closely to understand your unique needs and preferences, incorporating them into a custom design that maximizes space and efficiency.

Emerald Collection Group and INEO have cooperated on two exclusive islands in Maldives till now.We started to contact us in 2017 for commercial kitchen design, supplies and and installation.Over the past 7 years, customers feedback with great quality and less after-sales issues. Although 7 years have passed, we came to Maldives and offered after-sales maintenance initiatively, the customers were touched and warmly welcomed us onto the resort.
One sale contract, many memories and life story. Put customers first. We will support you for around the needs of customers.
Contact Us Today
More Kitchen Projects