

Grand Sylhet Hotel is located in Sylhet, Bangladesh, just a few kilometers from Sylhet Airport and the entire hotel has 11 floors and approximately 298 rooms.Our one-stop hotel kitchen design solution completely solved the problem of procurement and installation for our customers and finally closed the deal in 2017 with mutual satisfaction and completed the installation and delivery in the same year.
Grand Sylhet Hotel & Resort in Bangladesh

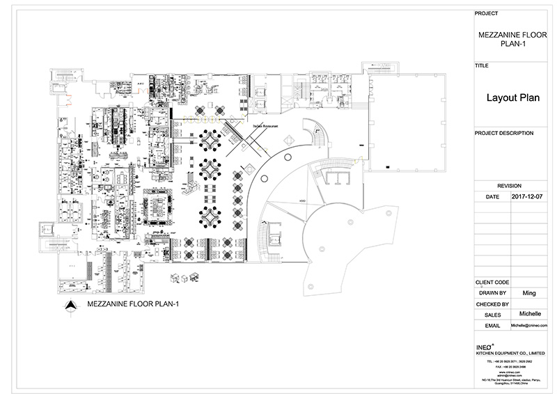
Our team made two on-site visits to Sylhet, one during the initial construction phase and another when the project framework was in place. Our client expressed the desire to determine specific floors and areas within a reasonable budget, including the lobby bar, receiving area, mezzanine main kitchen, and buffet area on the ground floor, as well as the banquet kitchen on the first floor, staff kitchen, and laundry area on the second floor, and finally the buffet and pool bar area on the ninth floor. Kitchen equipment such as stoves, refrigerators, custom stainless steel products, baking equipment, dishwashing equipment, and buffet products were involved. In our design approach, we ensured a rational and professional standard commercial kitchen layout, emphasizing the precise flow for receiving, storage, processing, cooking, washing, storage, and preparation that align with the requirements of different floors and areas.
Project Design drawings
Design proposal presentation
According to different floor and regional needs, we design a commercial kitchen with rationalized and professional standards, the process is basically the receiving area - dry goods area - cold storage + meat, vegetables and fish processing - hot kitchen area - dishwashing area - dish storage area - baking area - beverage area - meal preparation area - buffet area.

The design and installation of the hotel kitchen also require on-site support from our team. For example, the air conditioning ducts and ventilation systems on-site are crucial, as reducing the building height will impact the installation of our ventilation hoods and coolers. By clarifying the details that need attention in advance, we significantly enhance the efficiency of the installation, allowing our professionalism to be better reflected.

The success of a hotel engineering project heavily relies on the effective long-term communication and coordination between on-site contractors and suppliers. The reasonableness of the design also requires on-site support. We proactively communicated and addressed potential concerns with the client, effectively showcasing our professionalism. This collaboration not only strengthened our partnership with the client but also laid a solid foundation for future engagements.Throughout the process, we encountered various challenges, including unforeseen layout adjustments and the need for customized equipment modifications. However, by maintaining open lines of communication and a solutions-oriented approach, we were able to navigate through these obstacles and deliver a kitchen solution that met and exceeded our client's expectations.
This project serves as a testament to the value of proactive collaboration, technical expertise, and a customer-focused approach, and we look forward to the opportunity to continue providing exceptional service and solutions to our clients.The successful collaboration on this hotel project has been truly inspiring for us.

The client visited our company and showroom again in May 2024 to discuss the procurement plans for the second and third phases of the hotel project.

Contact Us Today
More Kitchen Projects